Projects
Southwest Airlines Master Architect’s Service Agreement
Western United States
Since 2017, PGAL has supported Southwest Airlines through a Master Service Agreement, delivering more than 100 projects across the Western United States. These task orders align with the airline’s “California Strong” initiative and its expansion into the Hawaii market.

Project scopes range from ramp operations and terminal improvements to back-of-house support spaces, spanning major hubs in California and beyond. Key efforts include gate expansions, ATO and Tech Ops renovations, GSE facilities, and provisioning infrastructure.
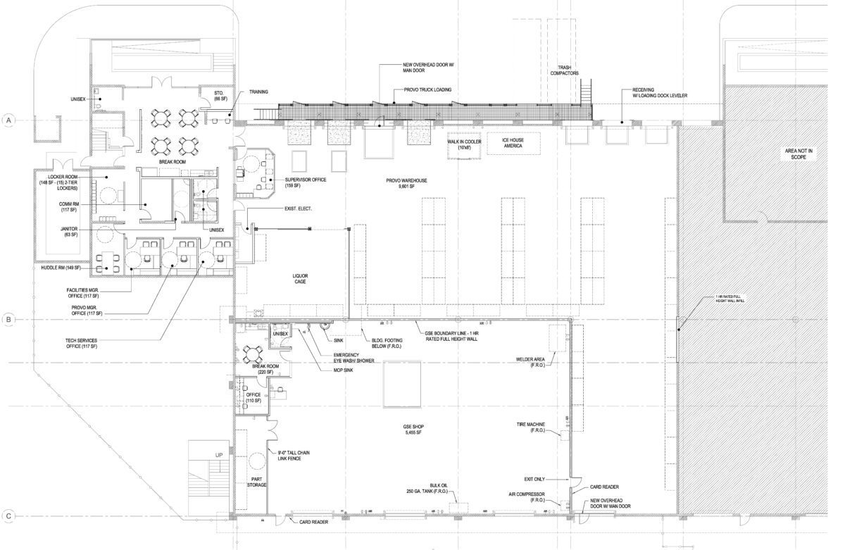
PGAL’s work emphasizes responsive design solutions tailored to evolving operational needs. Fast-track schedules, tight site conditions, and close coordination with airline stakeholders are common across assignments. For example, the SAN General Use Building Fit-Out consolidates cargo, GSE maintenance, and provisioning operations into a two-story facility. The layout is designed to optimize space utilization and maintain uninterrupted service within a constrained footprint.
Across all assignments, PGAL delivers architecture that supports operational continuity, enhances flexibility, and aligns with Southwest’s strategic growth objectives.